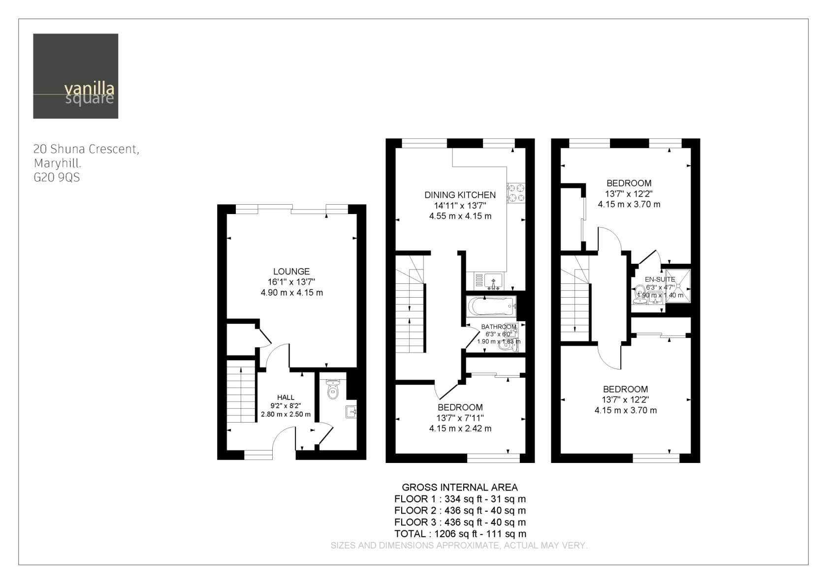
Welcome to this modern 3-bedroom townhouse located on Shuna Crescent, near the heart of Glasgow's vibrant West End. This property offers a perfect blend of contemporary living and picturesque surroundings, as it backs onto a tranquil canal.
As you enter the ground floor, you'll find a spacious lounge with doors that open onto the rear decking area. From here, you can enjoy stunning views over the lush gardens and the calming canal. This space is perfect for relaxing or entertaining guests.
Completing the ground floor is a convenient WC, providing an additional level of comfort and practicality.
Moving up to the first floor, you'll find a contemporary kitchen with views over the canal. The kitchen boasts integrated appliances and ample space for dining and entertaining. Whether you're hosting a dinner party or enjoying a quiet meal with family, this kitchen has everything you need.
Also located on the first floor is a spacious double bedroom with wardrobes, offering plenty of storage space. Adjacent to the bedroom is a luxury refitted bathroom, providing a touch of elegance.
On the top floor, you'll discover a principal bedroom with a double-height ceiling, creating a sense of grandeur and space. The principal bedroom also features an en-suite shower room, adding a touch of luxury to your daily routine. Additionally, there is another double bedroom on this floor, complete with fitted wardrobes.
The specification includes gas central heating and double glazing, ensuring a warm and energy-efficient living environment throughout the year. Parking is available to the front of the property, providing convenience and ease of access.
Don't miss out on the opportunity to make this modern townhouse your new home. Contact us today to arrange a viewing and experience the best of Glasgow's West End living.

If you are interested in this property, please contact us anytime on

3

1

2

EER Band: C

1216 Sq. ft.
ARRANGE A VIEWING OF
20 Shuna Crescent, Maryhill, Glasgow, G20 9QS

