A fabulous three bedroom detached family home set in a much admired modern development in Torrance. Set near the end of a quiet residential cul de sac and offered to the market in true walk-in condition. There is spacious and flexible living accommodation over two levels and there is the opportunity to convert the integral garage (subject to planning consent) into a fourth bedroom or sitting room if required. Nicely positioned away from busy main roads, yet on the doorstep of all local amenities within Torrance as well as several golf courses and recreational facilities in the surrounding areas of Bishopbriggs, Lenzie and Kirkintilloch
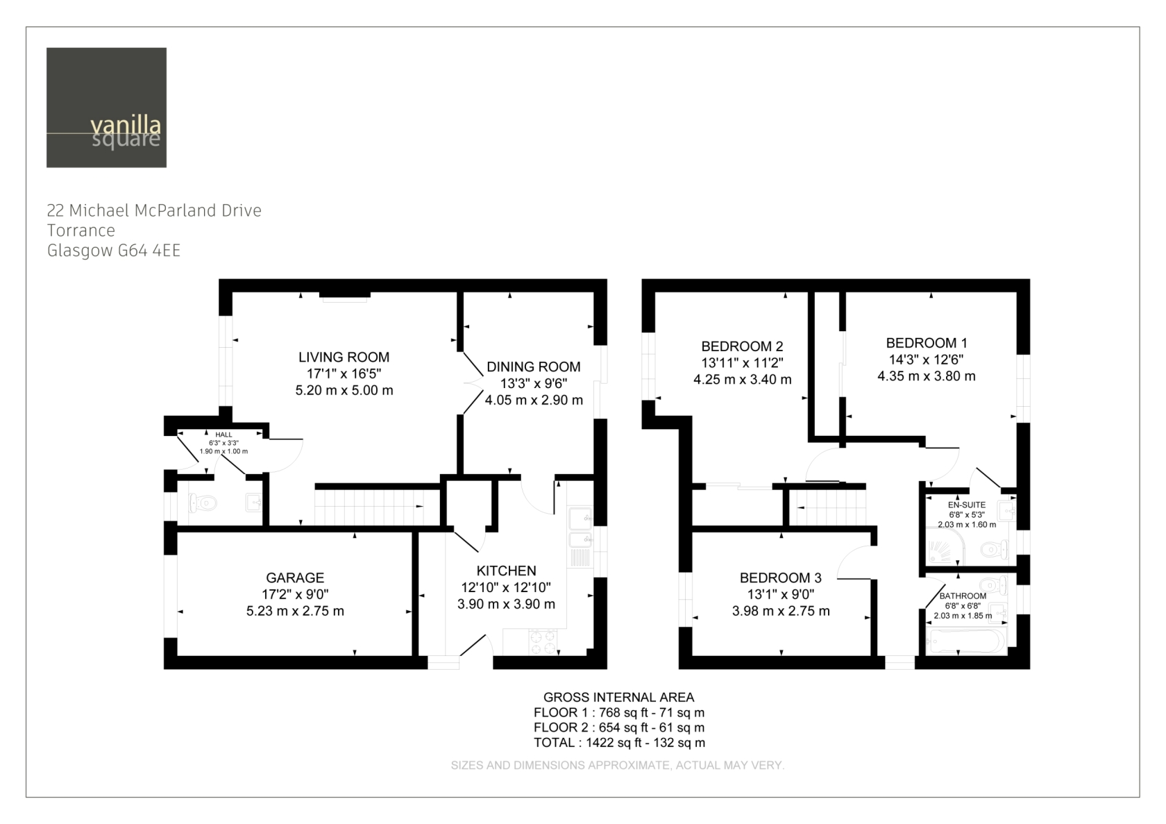
The internal accommodation comprises; entrance hallway with wc/cloaks off, impressive 17’1 lounge with double doors opening into a dining room that has patio doors onto the private rear gardens. The lounge and dining room make a great space for families and for entertaining. The kitchen is fitted with quality modern wall and floor units, integrated appliances and has a door to the side of the property.
The upper level has a large principal bedroom with fitted wardrobes and a luxury en-suite shower room. There are two further well-proportioned double bedrooms and completing the accommodation is a family bathroom with fresh white three piece suite and over-bath shower.
The specification includes gas central heating and double glazing. The private rear gardens are not overlooked and offer a patio area as well as a lawn – an ideal spot to relax outside in fine weather or let the kids play football. The integral garage offers secure parking as well as having a monobloc driveway with off-street parking for several cars. This is a beautiful family home that is sure to prove popular with a range of buyers therefore early viewing is highly recommended.

If you are interested in this property, please contact us anytime on

3

2

2

EER Band: C

1259 Sq. ft.
ARRANGE A VIEWING OF
22 Michael McParland Drive, Torrance, East Dunbartonshire, G64 4EE

