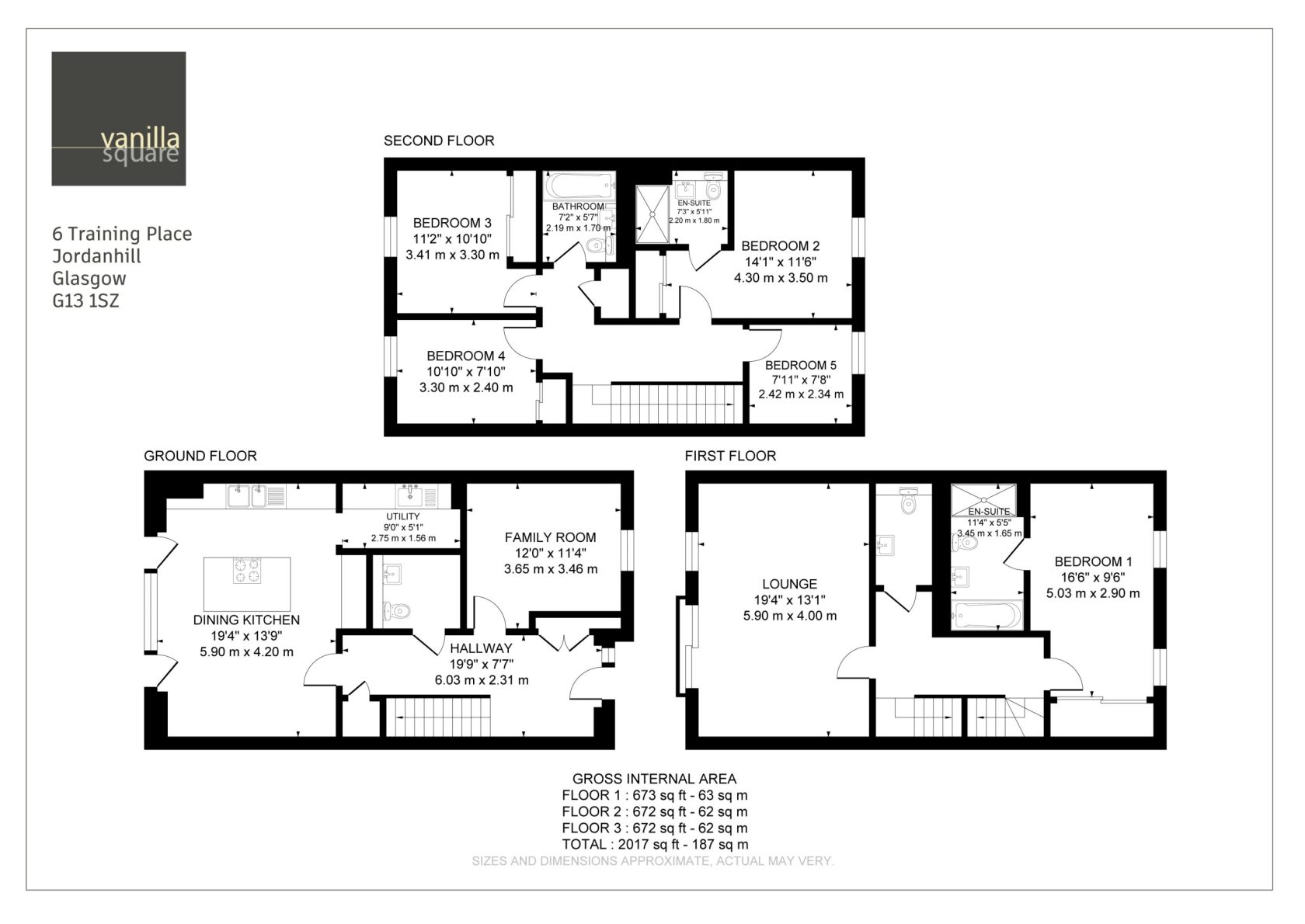
An incredible five bedroom townhouse set in the exclusive Cala Jordanhill Park development offering spacious accommodation over three levels. Extending to around 2012 sq ft, this impressive family home is presented to the market in true walk-condition and is the first re-sale in the development. These 5 bedrooms townhouses are extremely sought after with the next ones not being available until 2024, therefore early viewing is highly recommended. Finished to a high spec throughout with luxury fixtures and fittings and adaptable accommodation to suit a range of buyers. A peaceful location in this exclusive development with acres of Parkland to enjoy the outdoors, whilst being moments from the heart of the thriving West End where there are a vast array of trendy shops bars and restaurants as well as excellent public transport links. Also on the doorstep of high ranking schools, tennis clubs and Leisure clubs including nearby David Lloyd.
The internal accommodation comprises; broad and welcoming entrance hallway, magnificent dining kitchen luxury wall and floor units, integrated appliances, an island unit and plenty of space for a dining table and chairs. The kitchen has bi-fold doors opening onto the private rear decking and garden area and there is also a useful utility room. Completing the ground floor is a family room or guest bedroom and a wc/cloaks.
The first floor has a spacious 19’4 lounge with two large windows looking onto the rear gardens and allowing for plenty of natural light, a principle bedroom with beautiful en-suite bathroom containing a fresh white four piece suite, and a separate guest wc with two piece suite.
The upper level has a good sized second double bedroom with en-suite shower room and fitted storage, and three further well proportioned bedrooms (one of which offer fitted wardrobes). Completing the accommodation is a family bathroom with white three piece suite.
The specification includes gas central heating and high performance double glazing. The rear gardens are easy maintenance and enclosed by fencing making them secure and child-safe. To the front there is a monobloc parking space. A wonderful family home in a prime location that is certain to impress all who view.
EER Band B

If you are interested in this property, please contact us anytime on

5

2

4

EER Band: B

2012 Sq. ft.
ARRANGE A VIEWING OF
6 Training Place, Jordanhill, Glasgow, G13 1SZ

