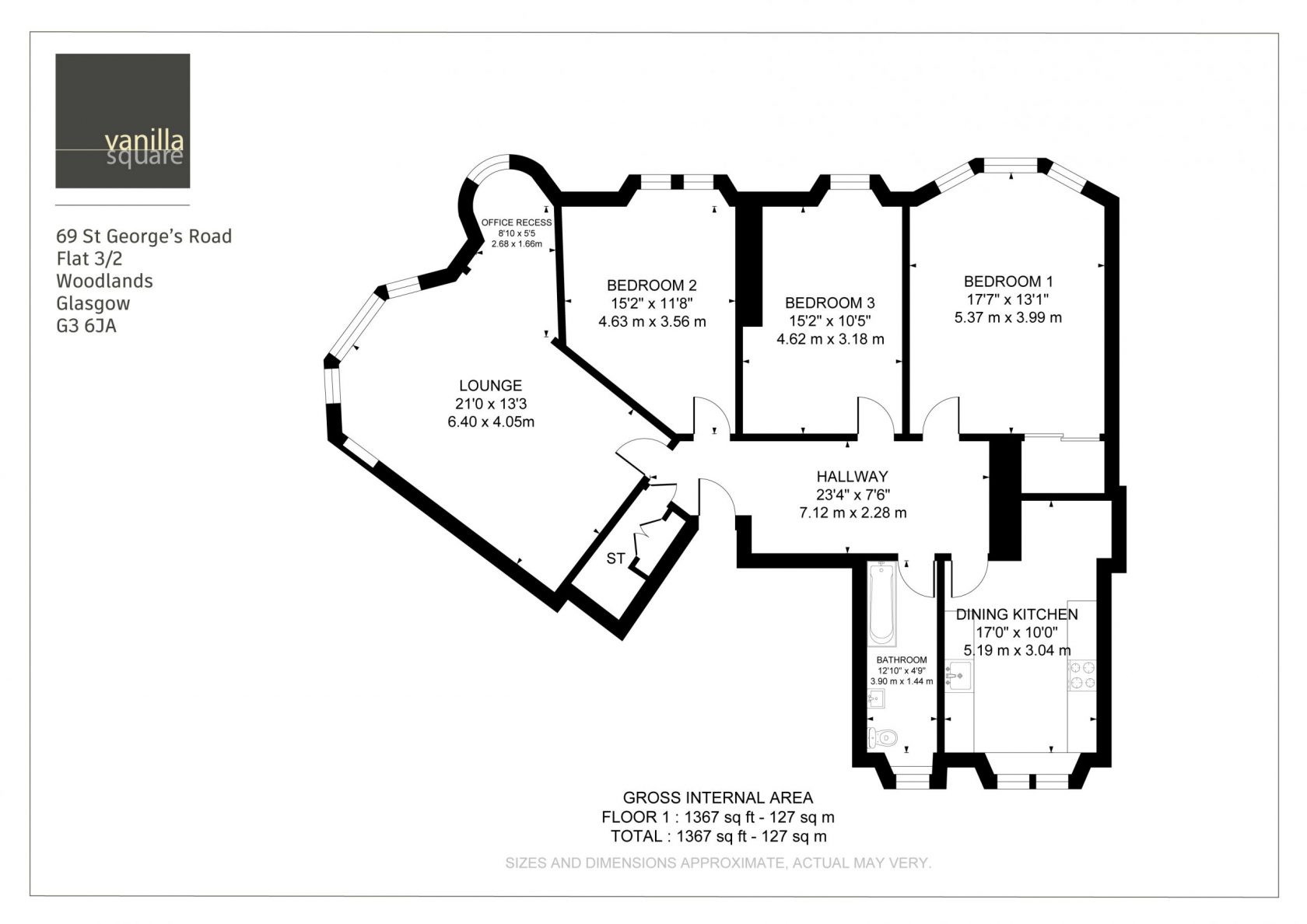
An incredible three bedroom flat set on the third floor within the iconic St Georges Mansions at Charing Cross. Finished to a high spec throughout having been fully renovated in 2019. Oozing period character and charm whilst offering a luxurious, modern standard of living – the best of both worlds. Offered to the market in true walk-in condition and certain to appeal to a wide range of buyers. Nicely positioned in Charing Cross only moments from the heart of the West End as well as the City Centre where there are a vast array of trendy shops, bars and restaurants as well as excellent public transport links.
The internal accommodation comprises; grand entrance hallway with large storage cupboard off, immediately impressive 21’0 formal lounge with bay window to front and useful study recess. The dining kitchen has been refitted with quality wall and floor units, integrated appliances and plenty of space for a table and chairs. There are three well proportioned double bedrooms (the principle bedroom has in-built wardrobes), and completing the accommodation is a refitted bathroom with fresh white three piece suite and over-bath shower.
The specification includes gas central heating and security controlled entrance. The communal areas are well maintained by an appointed factor and on-street permit parking is available through Glasgow City council.
EER band D

If you are interested in this property, please contact us anytime on

3

1

1

EER Band: D

1141 Sq. ft.
ARRANGE A VIEWING OF
3/2, 69 St Georges Road, Charing Cross, Glasgow, G3 6JA

