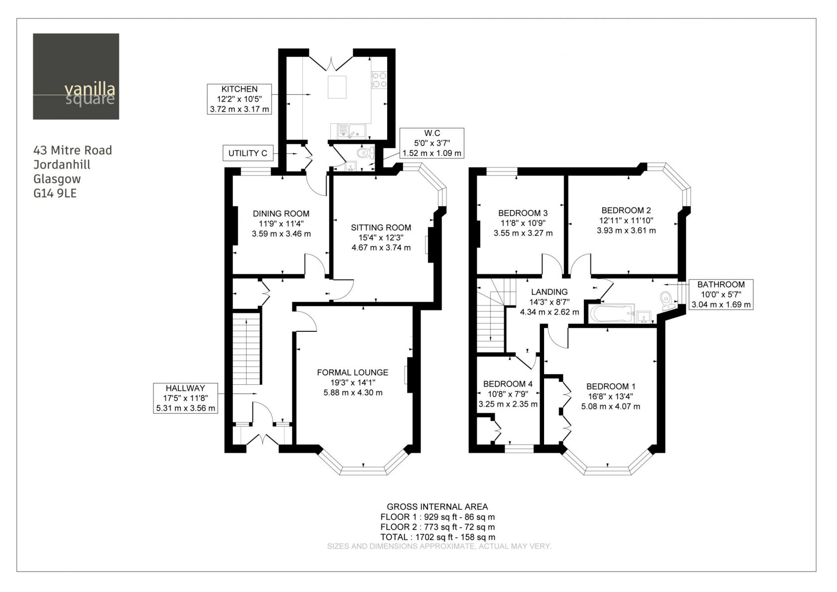
An exceptional four bedroom family home set on a sought after street in the much admired Jordanhill. Within List 1 Jordanhill school catchment, this property is ideal for families. Oozing period character and charm whilst offering a luxurious modern standard of living that is certain to impress. This handsome home extends to around 1765 sq ft over two legs and sits on a good size plot with driveway and rear gardens. Convenient located close to a wide range of amenities in Broomhill, excellent public transport links and close to the Expressway giving easy access to Glasgow City Centre.
The internal accommodation comprises; broad and welcoming entrance hallway, immediately impressive formal lounge with bay window to front and feature log burning stove, spacious family/ sitting room that could also be used as a 5th bedroom if required, a formal dining room- ideal for a large table and chairs and great space for entertaining, and a luxury kitchen with quality modern wall and floor units, integrated appliances and double doors opening onto the rear gardens. Completing the ground floor is a wc/cloaks and a useful utility cupboard.
The upper level has four well proportioned bedrooms and a family bathroom with fresh white three piece suite and over-bath shower.
The speculation includes gas central heating and double glazing. The rear gardens are enclosed and child-safe, whilst also being very private. There are two sheds for extra storage in the garden. To the side there is a driveway with off-street parking and an electric charging point. Mitre Road is a broad street allowing for plenty of visitor parking. Overall this is an incredible property in one of the West Ends most sought after locations that is not to be missed.

If you are interested in this property, please contact us anytime on

4

3

1

EER Band: D

1765 Sq. ft.
ARRANGE A VIEWING OF
43 Mitre Road, Jordanhill, Glasgow, G14 9LE

