Situated on Ralston Road, one of Bearsden’s most iconic streets in which to live, Red Pike is a beautiful five bedroom detached home built in the 1930’s. Beautifully placed on a mature level plot of approximately a third of an acre, the current owners have re modelled and extended the house during their ownership, providing an exemplary modern contemporary home with a beautiful traditional facade, located within the old Bearsden Conservation Area.
In 2013, the current owners submitted plans to extend Red Pike and work commenced in 2016. This included a sizeable double height extension to the side and rear (West side of the house) and a further single-story extension also the rear of the property (East side of the house). The double story extension significantly increased the floor area on the upper level providing, 4 double sized bedrooms, three of which are ensuite, as well as dressing areas within two of the bedrooms. Downstairs was also increased in size with remodelling work carried out, providing some beautiful open plan living spaces, as well as an extremely high specification kitchen with centre island and bi folding doors that open onto the garden. The extension downstairs also created a games room/cinema room. In addition, the property was also re wired, re roofed and re plumbed as part of the work, with a new central heating system.
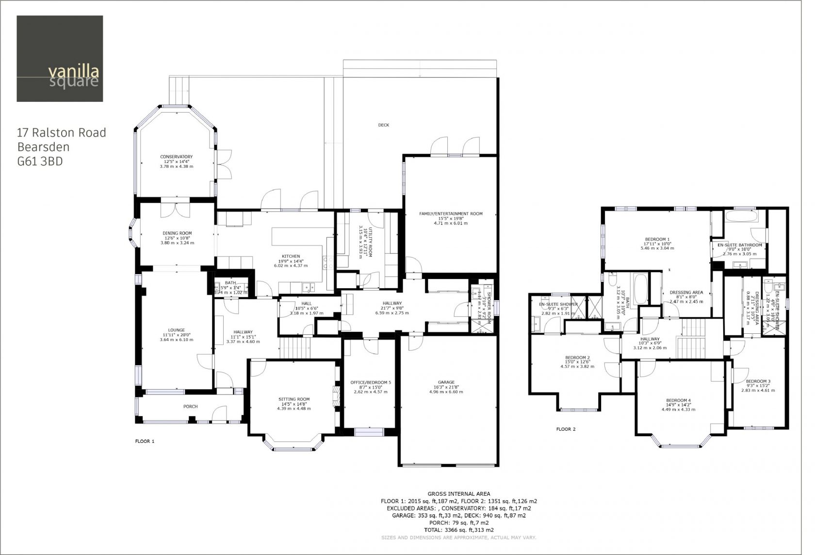
In terms of accommodation, Red Pike is entered through a porch and from there into a welcoming reception hallway with recessed staircase. There is a stunning formal sitting room with bay window and fire surround with gas fire at its focal point. There is a semi open plan dining/family room, with doors that lead out onto a conservatory. The dining/family room leads into the kitchen. The beautiful contemporary styled kitchen was installed by Kutchen Harmone, with a range of contemporary styled wall and floor mounted units as well as AEG integrated appliances which are: oven, steam oven, warming drawer, grill and microwave with ceramic hobb and overhead extractor fan, dishwasher and Qooker boiling tap. The kitchen also benefits from a beautiful centre island which also creates an excellent breakfast bar area. There is a very useful separate utility room also with door accessing outside. The downstairs accommodation is completed by further sizeable integrated storage, guest WC, shower room, a sizeable study / home office and the playroom, currently utilised as a games room/cinema room, also with bi-folds onto the decking and garden.
A split-level staircase separates at the middle landing and to the right gives access to the guest bedroom, with dressing area and en suite bathroom. On taking the staircase to the left on the turn and reaching the top there is a generous upper landing, with three further double bedrooms, two of which feature integrated wardrobe space and have en suite facilities and a large family bathroom. The entire master bedroom was formed by the 2016 extension and creates a master suite with tri aspects overlooking the beautiful, landscaped back garden.
In addition, the house benefits from a Matrix multimedia system, delivering two Virgin Media boxes, DVD Player, Google cast, Apple TV to the family room, kitchen, master bedroom, home cinema screen and one free port still available with cabling to the conservatory. An integrated multi-room speaker system with ceiling speakers has been installed and runs to the media cabinet located in the utility room. As previously mentioned, the property had a new central heating installed in 2016, with a new Worcester gas boiler with Greenstar Highflow CDI 550 hot water tank.
To the outside Red Pike is set within a beautiful mature garden. The garden to the front hosts a massive array of herbaceous plants and shrubs as well as neatly maintained mature hedge on the periphery, there are also mature trees ensuring a high degree of privacy. A sweeping driveway accessed through stone gate posts provides multiple off-street parking and accesses an integrated double-garage with remote control up and over doors. The back garden has been remodelled, with strategically placed decking areas following the sun movements over the garden. The rear garden also has a selection of herbaceous plants and shrubs as well as mature trees on the periphery. It’s a fabulous place to enjoy peace and tranquillity in a suburban oasis or is perfect for entertaining friends and family with al fresco dining, bbq area and outside drinks bar.
EER band C

If you are interested in this property, please contact us anytime on

5

6

6

EER Band: C

3755 Sq. ft.
ARRANGE A VIEWING OF
Red Pike, 17 Ralston Road, Bearsden, Glasgow, G61 3BD

