An incredible two bedroom first floor drawing room conversion set within this handsome South facing townhouse in Dowanhill. Oozing period character and style whilst offering a luxurious, modern standard of living. Nicely positioned only moments from Byres Road and Hyndland where there are a vast array of trendy shops, bars and restaurants as well as excellent public transport links. Dowanhill Park is just across the road and this property has access to the large, mature pleasure gardens to the rear. Overall it is a remarkable property that is not to be missed.
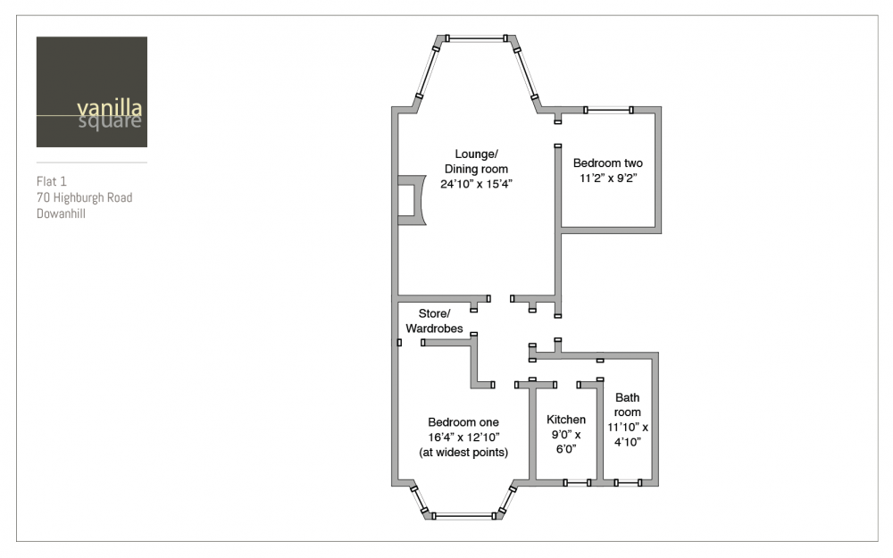
The internal accommodation comprises; welcoming entrance hallway, magnificent 24’10 formal lounge/ dining room with feature fireplace, wooden flooring and bay window to front. The kitchen has been completely refitted by Luxecasa offering high quality wall and floor units and integrated appliances. There are two well proportioned double bedrooms (the master bedroom has a walk in wardrobe/ storage that can also be accessed from the hallway). Completing the accommodation is a stunning refitted bathroom also by Luxecasa with fresh white four piece suite including stand-alone bath and separate shower cubicle.
The specification includes gas central heating and security controlled entrance. The communal areas are well maintained and make a great first impression. A notable feature of this property is having access to the pleasure gardens to the rear- a huge garden to enjoy the outdoors in fine weather. On-street parking permits can be obtained through Glasgow City Council.
EER band D

If you are interested in this property, please contact us anytime on

2

1

1

EER Band: D

861 Sq. ft.
ARRANGE A VIEWING OF
F1 70 Highburgh Road, Dowanhill, Glasgow, G12 9EN

